Wohnungen

Penthouse Haissenhof PE 3

Kurzbeschreibung

.

4.Stock

113 m²

1 Schlafzimmer

1 Bad/Bäder

Objekteigenschaften

  • Innenhof
  • Abstellraum
  • Fussbodenheizung
  • Loggia
  • Balkon
  • Glasfaser-Zugang
  • Aufzug
  • Garagenstellplatz
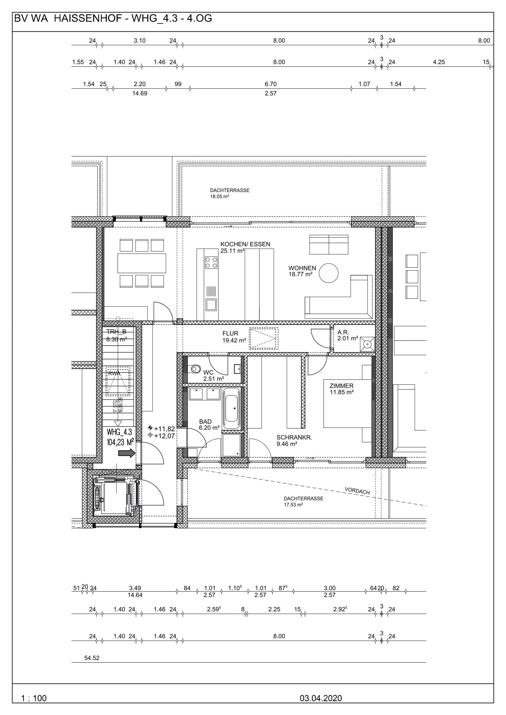
Objektplan

Alle angegebenen Maße sind Rohbaumaße.
Machen Sie sich ein Bild vom Wohnungsschnitt. Eine gelungene Raumaufteilung der Wohnung trägt viel zur Wohlfühlatmosphäre bei. Sie sehen die Ansicht der Wohnung im Grundriss als Draufsicht als auch mit den Plan-Rohmassen. In der unteren Ansicht mit den Rohmassen wird beim Berühren mit der Computermaus eine Bildschirmlupe aktiviert. Das hilft bei der Platzierung Ihrer Lieblingsmöbel.

Adresse

Bahnhofstrasse 30 und 30a

94032 Passau

Kontakt

Email: Diese E-Mail-Adresse ist vor Spambots geschützt! Zur Anzeige muss JavaScript eingeschaltet sein!

Telefon: +49 (0)851 756 84 888

(Popp Immobilien GmbH)

 

Wir benutzen Cookies

Wir nutzen Cookies auf unserer Website. Einige von ihnen sind essenziell für den Betrieb der Seite, während andere uns helfen, diese Website und die Nutzererfahrung zu verbessern (Tracking Cookies). Sie können selbst entscheiden, ob Sie die Cookies zulassen möchten. Bitte beachten Sie, dass bei einer Ablehnung womöglich nicht mehr alle Funktionalitäten der Seite zur Verfügung stehen.